亚洲国产欧美在线观看|好吊妞国产欧美日韩观看|91琪琪丝袜六部在线|欧美日韩中字亚洲一区

      <delect id="aqsfh"></delect>

          <delect id="aqsfh"></delect>

              | 首 頁 | 公司簡介 | 新聞中心 | 產品集錦 |  產品目錄 | 產品知識 | 聯系方法 | 網上訂單 | 電子郵局 | 
             
            SJB-V25型手動加油泵(3.15MPa)JB/T8811.2-1997

            一、概述
            該泵適用于向31.5MPa壓力級的手動潤滑泵或40MPa壓力級的小型電動潤滑泵貯油器內加注潤滑劑。因該泵具有出油過濾,油位顯示及操作方便等特點,特別適用于向貯油器補給口無過濾裝置的潤滑泵加注潤滑脂。

            二、技術參數

            型號
            公稱壓力MPa
            給油量mL/循環(huán)
            ****手柄力N
            貯油桶容積L
            重量kg
            SJB-V25
            3.15
            25
            ≤160
            20
            18.3
            使用介質為錐入度不低于220(25℃,150g)1/10mm 的潤滑脂和粘度等級大于N46 的潤滑油。
               
            三、型號說明               


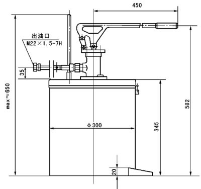
            四、外形尺寸

            五、工作原理
            操作手柄向上運動時,活塞上腔容積逐漸變小,把潤滑劑沿輸送膠管送到貯油器里,活塞下部逐漸變大,形成負壓,管帽內的單向閥打開,把油桶內的潤滑劑吸入。當手柄向下運動時,活塞上腔形成負壓,下部單向閥關閉,吸入的潤滑劑不能返回油桶,此時活塞上部單向閥打開,潤滑劑進入活塞上腔。當手柄再次向上運動時,重復上述過程。


            六、使用說明
            1、使用時輸油膠管一端接加油泵出口,另一端接貯油器補給口,使用完畢后另一端應擰在桶蓋螺栓上。
            2、應定期清洗過濾網
            3、油標在下位時桶內應及時加脂,以免無脂吸入空氣混入貯油器內。


            Copyright © 2012 南通市立新機械制造有限公司 地址:江蘇啟東市城北工業(yè)園楊沙路27號 潤滑設備
            電話:0513-83308668 傳真:0513-83308989 網址:www.wxyggroup.com E-mail:ntlx@ntlx.cn
            在線咨詢